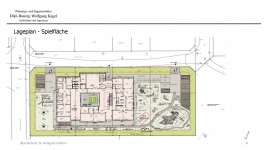
Erste Präsentation im Juni 2020 (Quelle: Bürgerinformationsdienst der Gemeinde Stahnsdorf)
Südansicht des Entwurfs ( © und Link zu Planungsbüro Kagel)
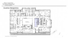
Erste Präsentation im Juni 2020 (Quelle: Bürgerinformationsdienst der Gemeinde Stahnsdorf)
Südansicht des Entwurfs ( © und Link zu Planungsbüro Kagel)